AVOR

Home

Inhalt

Bestellung

Kontakt

Einführung
Grundlagen
Vorarbeiten
Koordination
Betonschalung
–– Fundamente
–– Wände
–– Decken
–– Brücken
–– Tunnel
Fachliteratur
Links
bauliteratur-logo

Betonschalungen - Fundamentschalungen

6.2. Schalungen für Fundamente, Gruben und Leitungskanäle

Während die Schalungsfabrikanten den Markt mit neuen Schalungssystemen für Wände, Decken, Stützen und Spezialbauwerke förmlich überschwemmen, finden die obengenannten Schalungsarten recht wenig Beachtung. Wohl werden in letzter Zeit einige Abschalungswinkel und Stirnschalungspatente angeboten, doch mit recht bescheidenen Angaben über zulässige Belastungen, Abstände der Abstützungen usw.. Dabei wird besonders bei den Fundament-, Gruben- und Leitungskanalabschalungen immer wieder improvisiert und niemand macht sich Gedanken, wenn bei der 100 m langen Abwicklung einer Fundamentplatte bis zu 40 Abstützungen im Betrage von Fr. 400.-- zuviel angebracht werden. Diese Schalungen, welche jahraus, jahrein immer wieder erstellt werden müssen, verdienen besondere Beachtung. Bekanntlich sind es viele Kleinigkeiten, die sich über die ganze Bauzeit summieren und schlussendlich über Gewinn oder Verlust jeder einzelnen Baustelle entscheiden. Bei den grossen Betonkubaturen und Schalungsflächen wird der Preis sowieso äusserst knapp kalkuliert, so dass bei allen kleineren Arbeiten vermehrt darauf zu achten ist, dass der Arbeitsaufwand gering bleibt.

 

Stirnschalungsdruck

Über den Schalungsdruck bei Wänden existiert eine Vielzahl von Abhandlungen. Angaben über den Betondruck auf Fundament- und Stirnschalungen sind jedoch in keiner Fachliteratur zu finden.

Unter Beachtung der dynamischen Wirkung der Vibriernadel kann mit folgendem Fundament- und Stirnschalungsdruck pro m' gerechnet werden.

 

p  =  

 

p = Schalungsdruck pro Laufmeter
p
= Dichte des Betons
h = Höhe der geschalten Betonfläche

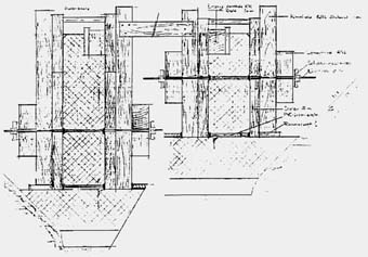
Fundament- und Stirnschalungsdruck (- - - Unterzug mit 20er Decke)

Höhe h
in cm

Druck
p in kN/m'

Demnach beträgt z.B. der Schalungsdruck einer 30 cm starken Fundamentplatte 1,1 kN/m (110 kg/m) und bei einem 60 cm hohen Unterzug mit anschliessender 20 cm starker Decke 7,5 kN/m. Dieser horizontalen Druckkraft aus der oberen Tabelle ist bei allen Nagelungen, Abstützungen an Rundeisen, Pfählen oder gegen Baugrubenböschungen Rechnung zu tragen.


Die zu schwache Abschalung führte zu Verformungen

Arten von Fundament-, Gruben- und Leitungskanalschalungen

Bei diesen Schalungsarten bietet sich dem initiativen Baustellenchef eine Fülle von Möglichkeiten, seine Kreativität zu entfalten, um diese Arbeiten noch rationeller ausführen zu können.

Einige Ausführungsarten von Stirnschalungen

Ausführung mit:

Vorteil
Nachteil
 

- Dielen und Holz-
pfosten oder Rund-
eisenpfählen

schnell
günstig
ungenau
nur bis
30 cm Höhe

- Schaltafeln oder
Dielen und senkrechte
Kantholz 8/12 liegend
oder gestellt

genau
aufwendiger

- Schaltafeln mit
liegenden oder gestelten
Longarinen

rasch
nur bis
50 cm Höhe

2/3h

- Schaltafeln oder
Dielen mit senkrechten
Kantholz 8/12 und
Longarinen

genau jede
Höhe möglich

aufwendig

- Schaltafeln mit
waagrechten Longar-
inen und senkrechten
Kantholz

genau
aufwendig

- Schaltafeln mit
Schalungsträgern

genau

rationell
beschränkte
Höhe

- Dielen oder Schaltafeln mit Abschalungswinkel

- Schaltafeln mit Stahlträgern (10 - 12 m lang)

 

Bei leicht wasserführenden Böden kann unter Umständen auch zuerst die Sickerleitung mit dem Filterbeton erstellt werden. Dabei liegt der Vorteil in der Ableitung des Wassers und der sauberen Arbeitsfläche.

               
Die Abschalung der Stirne muss so oder so einmal erstellt werden. In diesem Fall erfüllen die Sickerleitung und der Filterbeton die Funktion eines Negativbetons.

Abstände der Abstützungen

Bei der folgenden Tabelle ist auf die Länge der Dielen zu achten. Zwischen den Abstützungen dürfen sich keine Stösse befinden.

Abschalungsart mit Abständen der Abstützungen

Die Abstände der Abstützungen in dem unteren Teil der Tabelle gelten nur, wenn das Auflager der Streben massiv ist und es die anfallenden Druckkräfte voll übernehmen kann.

Eine wirtschaftliche Lösung bei der Abschalung von Streifenfundamenten bieten Schalzwingen, da der Schalungsdruck gegenseitig aufgenommen werden kann.


Die Schalzwinge mit Klemmweite 105 cm für den Einsatz
bei 90 cm breiten Streifenfundamenten.  Bild: PERI

Liftschachtvertiefung

Bei diesen Vertiefungen empfiehlt es sich, die innere Schalung für den Negativbeton vorzufabrizieren. So kann unmittelbar nach dem Aushub der Negativbeton in einer Stärke von ca. 10 cm eingebracht werden. Danach erfolgt das Verlegen der Armierung, das Betonieren des Bodens und anschliessend das Schalen und Betonieren der Wände, wobei die Wandschalung auch als Stirnschalung für die Fundamentplatte zu dienen hat.

Leitungskanäle

Leitungskanäle sind oft im Gefälle zu erstellen, so z.B. in Tiefgaragen, Lagerräumen, Fabrikationsräumen usw.. Bei den Fälzen ist auf die Anordnung der Distanzhalter zu achten. In dieser Hinsicht zeigt der folgende Schalungsentwurf eine ideale Lösung, bei der nur 1 x gebunden wird und die Schalung der einen Kanalseite gegenüberliegend nochmals Anwendung findet.


Beim einmaligen Binden erhalten die oberen Distanzmasse eine Druckbelastung.
Sie sind deshalb entsprechend massiv auszubilden.

Rückblick zu Schalungen für Fundamente, Vertiefungen, Kanäle

Die gemachten Ausführungen zu diesem Abschnitt sollen aufzeigen, dass es sich lohnt, alltäglich vorkommende Schalungen aufzuzeichnen und die wirtschaftlichste Lösung zu suchen. Die Materialbestellungen erfolgen zusammen mit dem Schalungsinventar für Wände und Decken. Für diese Arbeitsvorbereitung ist in der Regel der Baupolier zuständig. Seine Lösungsvorschläge unterbreitet er seinem Vorgesetzten, womit die Voraussetzungen für eine optimale Ausführung gegeben sind.

Fortsetzung im Buch AVOR – Grundwissen für Baukader

nach oben

Rolf Heim Verlag, Schöneggstrasse 15, CH-9404 Rorschacherberg,
Tel. 0041 (0)79 286 98 16 
www.bauliteratur.ch   rolf.heim@bauliteratur.ch